闽发铝业
个人中心
搜索
闽发铝业
产品详情
副标题
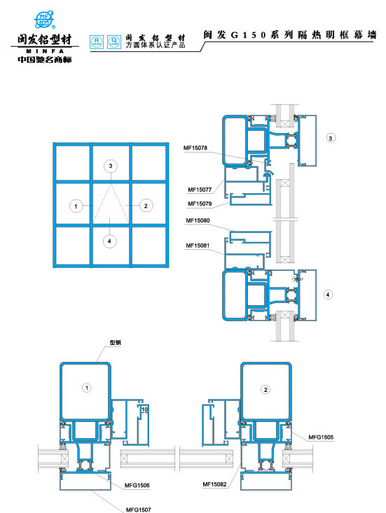
发G150系列(穿条式) Series G150
发G150系列(穿条式) Series G150
发G150系列(穿条式) Series G150
发表评论
登录评论
匿名评论
提交
提交
发G150系列(穿条式) Series G150